Produsele din stocul electricon, se livrează în 24-48 ore

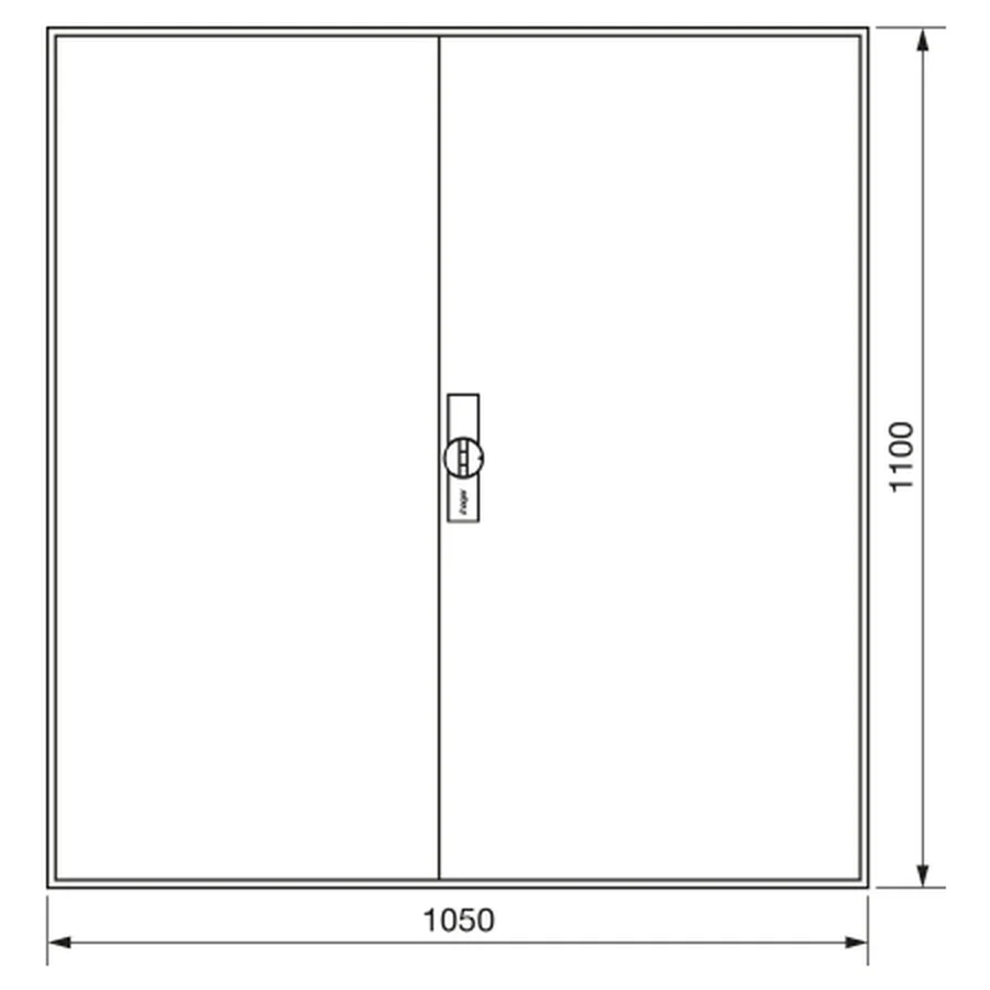
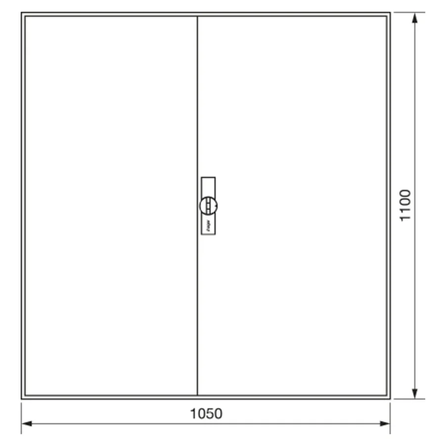
Hager Dulap contor, 1100x1050x205 mm, IP44/54, 336 unitați spațiale, Hager, universZ, ZB34S

Hager
   
Cod Produs: ZB34S Ai nevoie de ajutor? 0773393640 / 0772245110
  • Descriere
  • Caracteristici
  • Review-uri (0)

Hager ZB34S

 
Cod ZB34S
Descriere Dulap de măsurare Hager
Material Oțel
Nivel Hager universZ
Număr câmpuri 4
Număr rânduri 28
Număr unități spațiale 336
Clasa de protecție II
Grad IP IP44/IP54

Dimensiuni

Dimensiune Valoare
Înălțime 1150 mm
Lățime 1050 mm
Adâncime 205 mm

Link-uri utile

Declarație Conformitate
Link producător
Fișă tehnică (producător)

Informatii conformitate produs

Material: otel

Tip ușă: usa otel

Grad de Protecție IP: IP54

Gamă: Hager universZ

Daca doresti sa iti exprimi parerea despre acest produs poti adauga un review.

Review-ul a fost trimis cu succes.
Trimite

Compara produse

Trebuie sa mai adaugi cel putin un produs pentru a compara produse.

A fost adaugat la favorite!

A fost sters din favorite!